Zentrum für Biotechnologie und Umwelt (ZBU I)

Um externe Inhalte von OpenStreetMap (OSM) zu aktivieren, benötigen wir Ihre Einwilligung. Damit stimmen Sie der Datenübermittlung an OSM zu. Die dauerhafte Aktivierung gilt für alle OSM-Karten dieser Website.
Ihr Mietobjekt in Deutschlands größtem Wissenschafts- und Technologiepark
Das Zentrum für Biotechnologie und Umwelt (ZBU) bietet durch seine erstklassige technische Gebäudeausrüstung besonders jungen Biotech-Firmen beste Startchancen.
ZBU I – Details
Volmerstraße 5 - 9, 12489 Berlin
Erstbezug: 1997
Gesamtnutzfläche: 12.100 m²
Schwerpunkte:
- Biotechnologische Produkt- und Verfahrensentwicklung
- Pharmazie, Medizin und Medizintechnologie
- Pharmaanalytik, Lebensmittelanalytik, Mikrobielle Analytik
- Wasser-, Boden-, Luft-, Werkstoff- und Strukturanalytik
Gerne beantworten wir Ihre Fragen:
Jeanine Trawny
WISTA Management GmbH
Team Vermietung
+49 171 1503778 trawny(at)wista.de
Freie Flächen
Konditionen
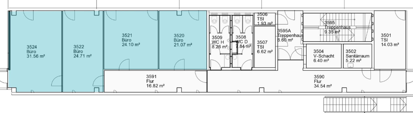
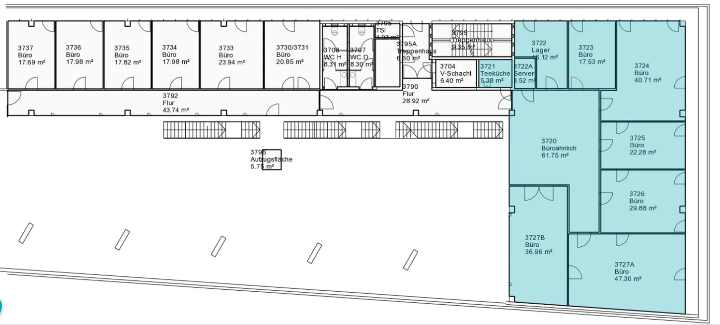
Mietfläche: 140,49 m² Gesamtfläche (Büroflächen)
Mietpreis: ab 13,00 €/m² im Monat für Büroflächen (4 % / Jahr Mietzinserhöhung)
Betriebs- und Nebenkosten: ca. 10 €/m² im Monat für kombinierte Büro- & Labornutzung
Ausstattung Büroflächen
- Nadelfließbodenbelag
- tw. Kabelbrüstungskanal für Elektrik und Daten
- flexible Telefon- und Datenverkabelung mit tw. ausgeführter strukturierter Verkabelung
- bildschirmtaugliche Leuchten



